Attraktive Bestandsimmobilie mit genehmigter Bauvoranfrage für ein modernes Vierfamilienhaus, ca. 355 m² Wohnfläche!





Hier sind die Details der Immobilie im Überblick:
Bestand:
———————————————————————
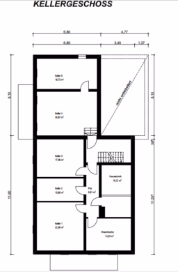
Kellergeschoss:
Erdgeschoss:
Wohneinheit 1 – ca. 92 m²:
Obergeschoss:
Wohneinheit 2 – ca. 76 m²:
Vorhandene genehmigte Bauvoranfrage wie folgt:
————————————————————————
Gablingen ist eine idyllische Gemeinde im Landkreis Augsburg mit rund 4.800 Einwohnern und fünf Gemeindeteilen. Die angebotene Immobilie befindet sich in Gablingen-Siedlung. Wer Ruhe und Naturnähe sucht, ist hier genau richtig, denn Gablingen verbindet ländlichen Charme mit moderner Infrastruktur.
Verkehrsanbindung:
Die Nähe zur Anschlussstelle Stettenhofen an der B2 ermöglicht schnelle Verbindungen nach Augsburg und Donauwörth. Buslinien des Augsburger Verkehrsverbundes sorgen für gute Verbindungen in alle Richtungen. Die Bahnstation Gablingen-Siedlung an der Strecke Augsburg–Nürnberg ist besonders praktisch für Pendler. Auch das Autobahnkreuz Augsburg-West an der A8 (Stuttgart–München) ist schnell erreichbar. So profitieren Bewohner von flexibler Mobilität im Berufs- und Privatleben.
Infrastruktur:
Alle Einrichtungen des täglichen Bedarfs sind gut erreichbar. Supermärkte, Bäckereien, Restaurants und Cafés sind bequem mit dem Auto oder öffentlichen Verkehrsmitteln zugänglich. Die medizinische Versorgung ist durch verschiedene Ärzte, darunter auch Tierärzte, gesichert. Familien finden vor Ort mehrere Kindergärten, die eine liebevolle Betreuung bieten. Grundschulen sind vorhanden, weiterführende Schulen wie Realschulen und Gymnasien in umliegenden Gemeinden gut erreichbar – mit Bus, Fahrrad oder Auto.
Freizeit:
Es werden vielfältige Möglichkeiten zur Freizeitgestaltung geboten. Die reizvolle Natur lädt zu Spaziergängen, Wanderungen und Radtouren ein. Flüsse, Wälder und Wiesen bieten ideale Bedingungen für Joggen, Nordic Walking oder Reiten. Sportvereine bieten ein breites Angebot für alle Altersgruppen, Fitnessstudios und Sportplätze ermöglichen individuelle oder gemeinschaftliche Aktivitäten. Familien schätzen Spielplätze, Tierparks und Freizeitparks in der Nähe. Seen und Freibäder laden im Sommer zum Badespaß ein.
Gablingen vereint ländliche Ruhe mit der Nähe zu urbanen Zentren und ist ein attraktiver Wohnort für Menschen jeden Alters.
Hier bietet sich eine seltene Gelegenheit für Investoren, Projektentwickler oder Bauherren: Zum Verkauf steht eine Bestandsimmobilie in attraktiver Lage, die sich aufgrund ihres Zustands ideal für einen Neubau eignet. Das bestehende Gebäude ist sanierungsbedürftig und bietet somit die perfekte Basis für eine umfassende Neuentwicklung des Grundstücks.
Besonders interessant: Für das Grundstück liegt bereits eine genehmigte Bauvoranfrage für ein modernes Vierfamilienhaus mit einer geplanten Wohnfläche von ca. 355 m² vor. Im Rahmen des Neubauprojekts sind zudem acht Pkw-Stellplätze sowie zehn Fahrradstellplätze vorgesehen.
Diese Kombination aus Bestandsimmobilie und genehmigter Neubauplanung schafft ideale Voraussetzungen für eine attraktive Projektentwicklung – sei es zur Weiterveräußerung nach Fertigstellung oder zur langfristigen Kapitalanlage.
Nutzen Sie diese Chance, um Ihr eigenes Bauvorhaben in einer gefragten Wohnlage zu realisieren, und profitieren Sie von der bereits erfolgten planerischen und baulichen Vorarbeit.
Für weiterführende Informationen, ein ausführliches Exposé sowie die genaue Adresse der Immobilie fordern Sie bitte unser Exposé an.
Wir freuen uns auf Ihre Kontaktaufnahme!
Es liegt ein Energieausweis zur Besichtigung vor.
Wesentlicher Energieträger der Heizung ist Öl.
Wir freuen uns auf Ihre Anfrage. Gerne lassen wir Ihnen weitere Informationen zu dieser Immobilie zukommen. Füllen Sie hierzu bitte das Kontaktformular vollständig aus. Frau Elena Schmidt setzt sich gerne mit Ihnen in Verbindung.
Damit wir Ihnen sofort das Exposé zuschicken können, benötigen wir nach der Neuregelung im Verbraucherrecht Ihre Zustimmung.
Sie erhalten daher vorab eine E-Mail mit der Belehrung über Ihr Widerrufsrecht, Hinweise zum Datenschutz und Provisionshinweise.
Bitte bestätigen Sie über den enthaltenen LINK, dass Sie die Belehrung erhalten haben und wir sofort für Sie tätig werden dürfen. Sobald Ihre Bestätigung vorliegt, erhalten Sie automatisch detaillierte Informationen zur Immobilie.
Da die Maklerprovision selbstverständlich nur dann anfällt, wenn Sie die Immobilie auch tatsächlich kaufen, bleibt Ihre Anfrage insoweit unverbindlich und kostenfrei.
Alle Angaben sind ohne Gewähr und basieren ausschließlich auf Angaben des Auftraggebers. Eine Haftung für Vollständigkeit, Richtigkeit und Aktualität kann nicht übernommen werden. Zwischenverkauf vorbehalten.
Sparen Sie Nerven und Zeit. Rüsten Sie sich mit aktuellem Expertenwissen und vermeiden Sie die häufigsten Fallstricke. In unserem Ratgeber erfahren Sie, wie Sie von der Wohnmarktanalyse bis hin zu den Verhandlungen mit dem Käufer Ihre Interessen wahren – und so den Top-Preis für Ihre Immobilie erzielen!
In unserem kostenfreien Guide erklären wir Ihnen, was Sie beim Verkauf Ihrer Immobilie beachten müssen.
Wichtige Versicherungen sind im Hauspreis von LAYER bereits inkludiert:
Damit Ihr Traumhaus auf sicherem Boden steht und Sie beim Kauf Ihres Grundstücks garantiert nichts falsch machen, wird der Baugrund von unabhängigen Bodengutachtern und Geologen geprüft. Diese erstellen eine Bodenanalyse und prüfen die Grundwasserstände. Im Anschluss daran erhalten entsprechendes Baugrundgutachten mit Gründungsempfehlung.
Sollten innerhalb von fünf Jahren nach Fertigstellung bautechnische Mängel auftreten, sind Sie mit unserer Baugewährleistungsversicherung geschützt. Die Versicherungssumme beträgt 100.000 Euro und somit ein Vielfaches der im Bauwesen üblichen 5 %. Etwaige Kosten für die Behebung von Mängeln werden dann direkt von der Versicherung an das Bauunternehmen gezahlt. Im Falle einer Insolvenz des Bauunternehmens wird das Geld direkt an Sie ausgezahlt.
Mit einer Bauleistungsversicherung wird Ihre Immobilie während der Bauphase vor Schäden durch unvorhersehbare Einflüsse geschützt und die Fertigstellung des Bauprojekts sichergestellt. Sollte Ihre Immobilie beispielsweise durch höhere Gewalt beschädigt werden (Hochwasser oder Sturm), sind Sie als Bauherr bei LAYER auf der sicheren Seite. Eigentlich hätte das Bauunternehmen in einem solchen Fall Ihnen gegenüber Anspruch auf Bezahlung der ggf. zusätzlich anfallenden Arbeiten. Durch unsere Bauleistungsversicherung ist dieses Risiko jedoch abgedeckt und es kommen keine Extrakosten auf Sie zu. Das gilt auch für Schäden durch Vandalismus, Konstruktions- und Materialfehler, Fahrlässigkeit sowie Schäden durch unerkannte Eigenschaften des Baugrunds.
Die Bauleistungsversicherung schützt zudem das Bauunternehmen. Wird der Rohbau durch ein unvorhergesehenes Ereignis beschädigt, ist normalerweise der Bauunternehmer verpflichtet, die Schäden zu beheben oder auf eigene Rechnung neu zu bauen. Durch die Versicherung werden diese Extraleistungen jedoch erstattet. So beugen wir Komplikationen und Verzögerungen auf Ihrer Baustelle vor.
Als Bauherr haben Sie die Verpflichtung, auf Ihrer Baustelle für Verkehrssicherheit zu sorgen. Sie müssen die Baustelle so absichern, dass sich niemand verletzen kann, beispielsweise indem Sie eine entsprechende Beschilderung und Beleuchtung aufstellen. Zwar wird diese Sorgfaltspflicht in der Regel von der Bauherrschaft an den Bauunternehmenden übertragen, doch rechtlich bleibt die Überwachungspflicht und auch die Haftung beim Bauherrn. Deshalb haben wir für Sie eine Bauherrenhaftpflichtversicherung in den Bauvertrag aufgenommen, die Sie für alle Fälle schützt. Zudem sorgt LAYER für die notwendige Abstimmung der ausführenden Firmen auf der Baustelle untereinander, sodass rechtliche Arbeitsschutzmaßnahmen und Gefahrgutvorschriften eingehalten werden.